«TWR VELUX» световой туннель с жесткой трубой
Информация
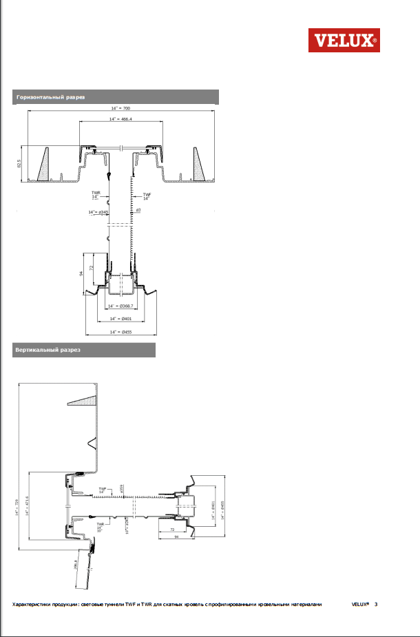
Технические характеристики:
Длина: 900-1700 мм, возможно удлинить с помощью секций для удлинения ZTR до 6000 мм
Диаметр туннеля: 350 мм
Толщина стекла: 4 мм с легкоочищающимся покрытием
Особенности: устанавливается в кровлю с уклоном от 15° до 65°, легкая сборка благодаря системе Flexi LocTM
Комплектация: жесткая труба (TWR) + секции для удлинения ZTR
Материал: закаленное стекло, полиуретан, стекловолокно, алюминий со светоотражающим покрытием, полиэтилен, поликарбонат, пластик
Возникли вопросы?
+7 495 088 45 71





